パナソニックキッチンラクシーナ W2550 キッチン交換工事

ひろびろ使えるシンクに、容量たっぷりで出し入れラクラクな収納など、調理のしやすさとお手入れのしやすさにとことんこだわったスマートなキッチン。
工事目安価格

商品のみの購入も可能です。
茨城県、栃木県、群馬県、埼玉県、千葉県、東京都、神奈川県は配送料無料でお届け。その他の地域は全国一律3万5千円で配送いたします。(沖縄・一部離島は配送相談になります。)
ユニット・レール

シルバー色ストッカー
ダンパーが衝撃を吸収して静かに閉まるフルオープンスライドレールのソフトクロージング機構です

ユニット内装色はスーパーホワイト色です。
ラクラク洗い物 ひろびろシンク

洗剤ラックをタテヨコ自由に配置。シンクの中が広く使えるから、洗い物もラクラクです。
排水プレートは鍋を置いても排水口をふさがない仕様です。

適材適所に収納でき、使いやすい 置きラク収納
コンロ下とシンク下に、収納スペースがたっぷり。最大475㎜まで引き出せるスライドレールのユニットに、調理器具や調味料などをカテゴリー別にすっきり整理して入れることができます。



加熱機器

ホーロートップガスコンロ片面焼グリル Siセンサーコンロ

丈夫なホーローコーティング仕上げ。汁受け皿なしでお掃除がラクラク。
その他

操作しやすいビッグレバー。水ハネを抑える泡沫吐水。

開き戸ウォールユニットには耐震ロックを装備。
安心感を高めます。

低ホルムアルデヒド対策
使用面積制限を受けない、
最高等級F☆☆☆☆の商品です。
お手入れらくらく スマートフードⅡ

ワンタッチで取り外して丸洗いできるファンや、油汚れがさっとふくだけで取れる「有機親水コーティング」の整流板。さらに、「フッ素コーティング」で汚れが落ちやすいフード内部。お手入れの手間を省く工夫が満載です。
パナソニックならではの、カウンター×シンクの豊富なカラーバリエーション

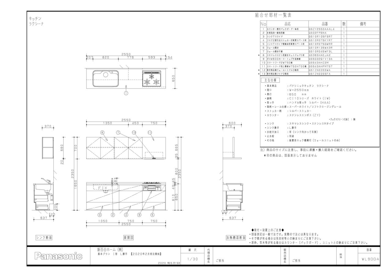
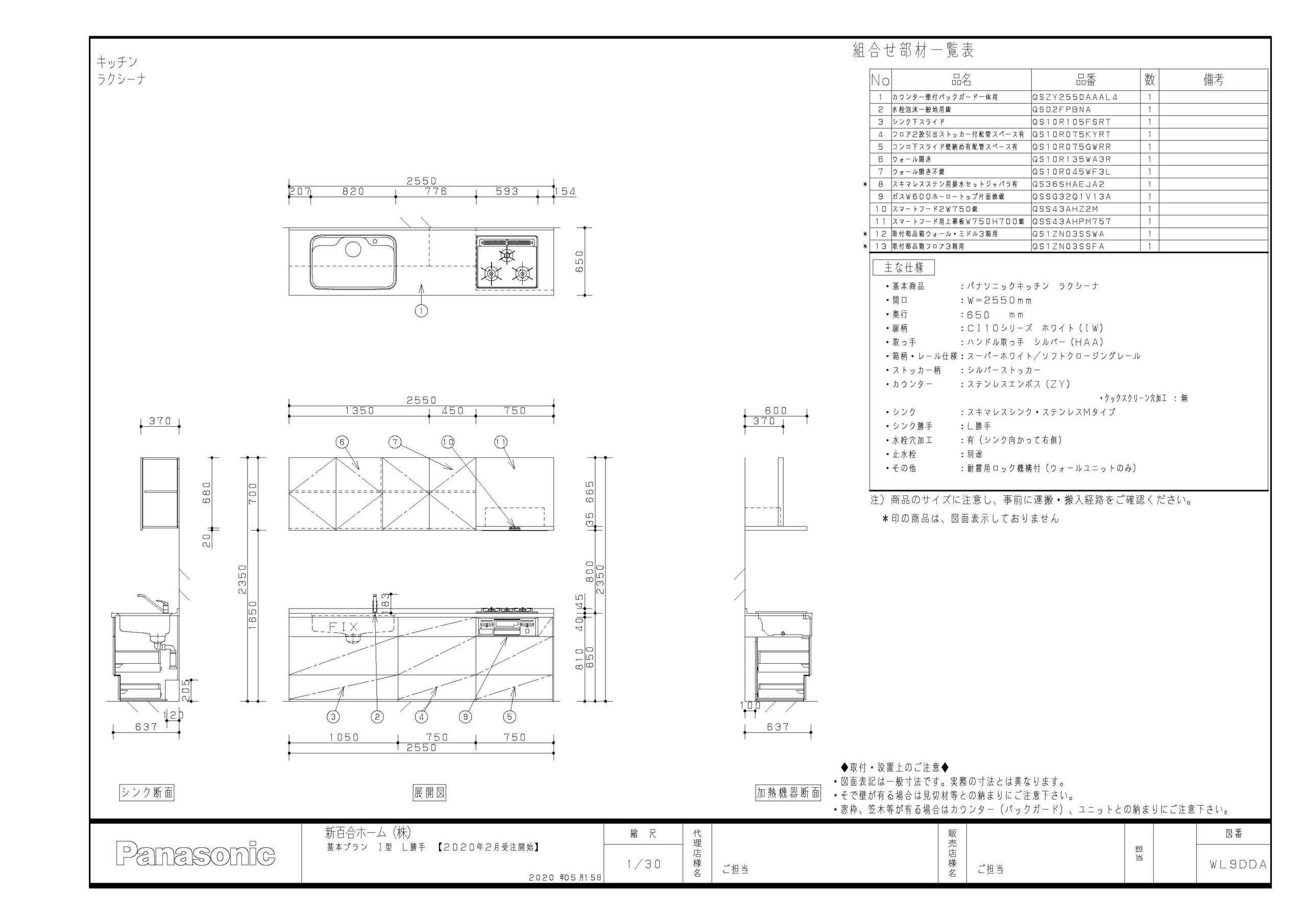
図面・寸法
※上記価格は当社の対応エリアでの参考価格です。地域、建物の形状等の諸条件により、対応できない場合や金額が異なる場合があります。
※価格には標準工事費が含まれておりますが、建物等の状況により別途工事が必要となる場合がありますので、事前に必ず現地調査させていただいております。
※掲載内容・金額は2020年4月現在のものであり、予告なく変更となる場合があります。
※掲載写真は一部イメージ、オプションを含みます。詳しくはお問い合わせください。



