パナソニック バスルームFZ 1216(0.75坪)サイズ 交換工事

スミに目地がない床や、ステンレス製&フッ素系特殊コーティングの排水口など、お手入れを助ける工夫が満載。
工事目安価格

商品のみの購入も可能です。
茨城県、栃木県、群馬県、埼玉県、千葉県、東京都、神奈川県は配送料無料でお届け。その他の地域は全国一律3万5千円で配送いたします。(沖縄・一部離島は配送相談になります。)
2つの仕様から選べる 快適浴槽


肩までしっかりお湯につかって足を伸ばしやすいアーチ浴槽。足もと側にあるベンチで半身浴や親子での入浴を楽しめるエスライン浴槽。お好みに合わせて選べる2つの浴槽をご用意しています。
湯温の低下を防ぎ、温かいお湯を保つ 保温浴槽Ⅱ

発泡ポリスチレン断熱材で浴槽を包み、高い保温効果を発揮。湯温が低下しにくいので、追い焚き回数を減らせて、光熱費の削減につながります。
スミに目地がなく汚れを落としやすい スミピカフロア

お掃除しにくい床のコーナー部分の目地をなくし、スミまでスポンジでラクにふけます。さらに、床の端が立ち上がった防水性に優れた構造なので、カビが生えにくく、お手入の手間を省きます。
汚れをはじく ささっとキレイ排水口

排水口に、ゴミがまとまりやすいステンレス製の目皿形状を採用。さらに、汚れをはじくフッ素系特殊コーティングを施しているので、お掃除がラクにできます。
スキットドア

今までのドアは、面材まわりのパッキンや換気口の部分に汚れがつきやすい状態でした。スキットドアはパッキンをなくし、換気口を水のかかりにくいドアの上に移動。汚れにくく、おそうじラクラクです。
壁付水栓

サークルLED照明

ポップアップ排水栓

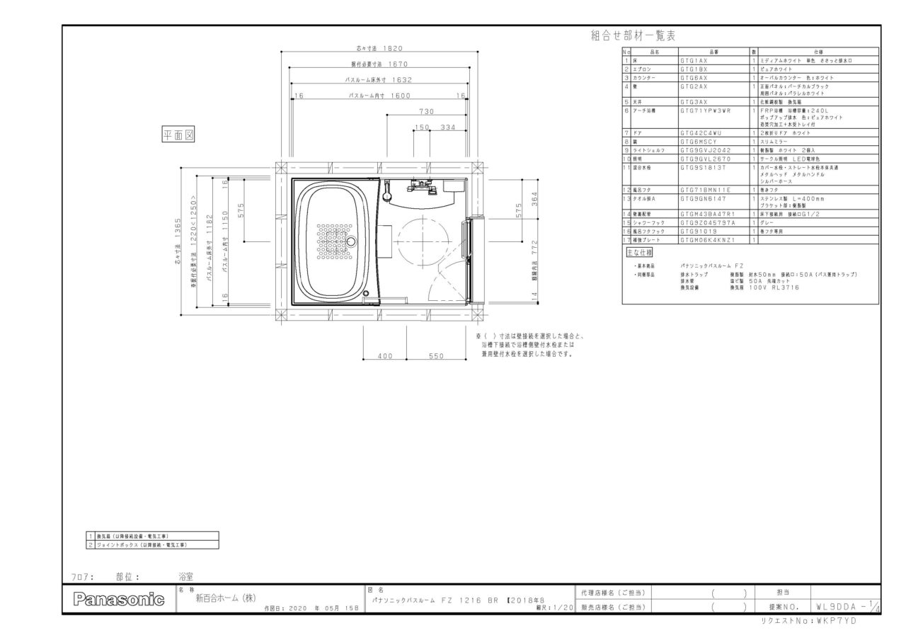
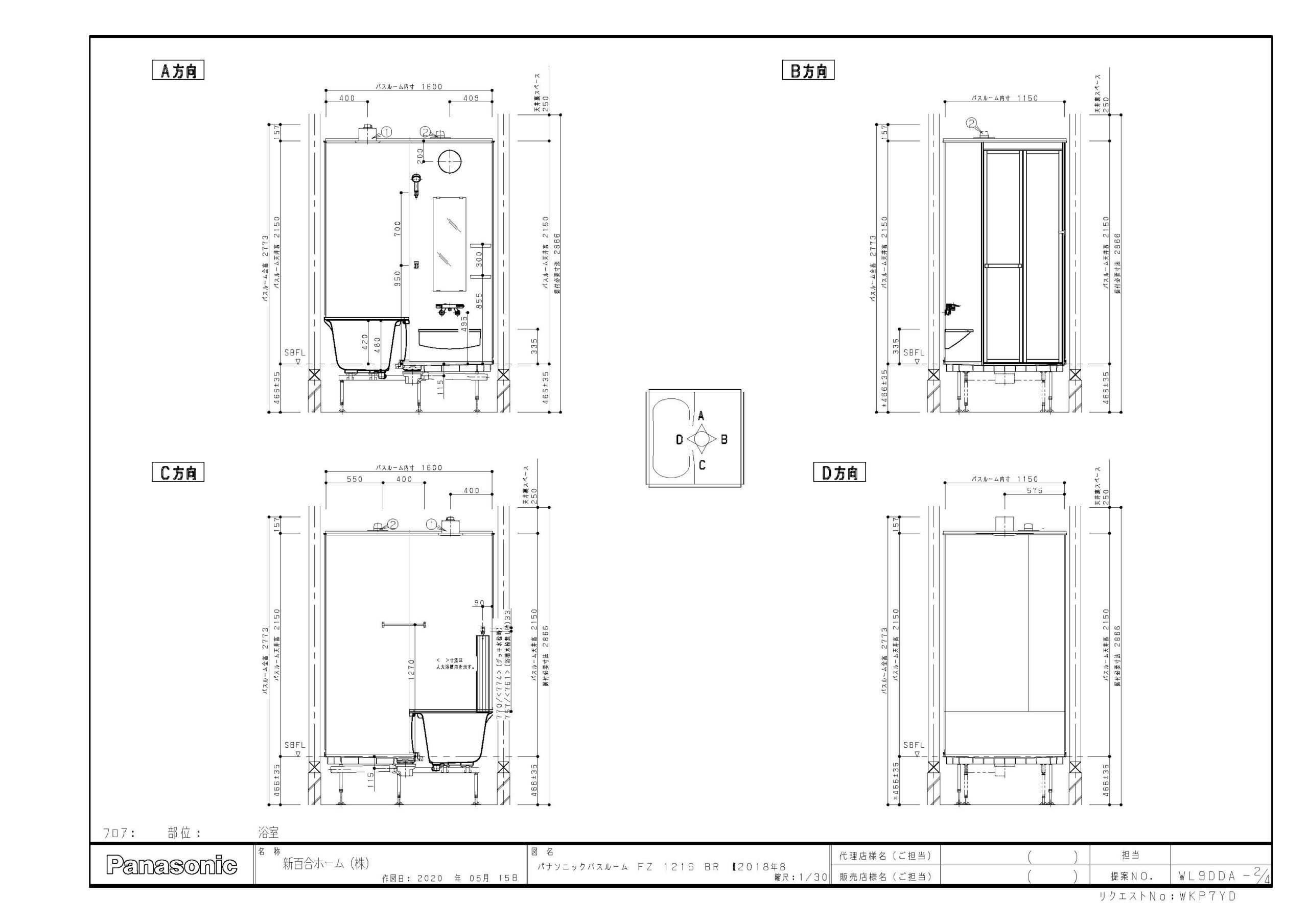
図面・寸法

※上記価格は当社の対応エリアでの参考価格です。地域、建物の形状等の諸条件により、対応できない場合や金額が異なる場合があります。
※価格には標準工事費が含まれておりますが、建物等の状況により別途工事が必要となる場合がありますので、事前に必ず現地調査させていただいております。
※掲載内容・金額は2020年4月現在のものであり、予告なく変更となる場合があります。
※掲載写真は一部イメージ、オプションを含みます。詳しくはお問い合わせください。


