TOTO バスルーム マンション用WY(1416)交換工事

お掃除ラクラクほっカラリ床、自然とリラックスする姿勢になれるゆるリラ浴槽など機能充実の快適バスルーム
工事目安価格

商品のみの購入も可能です。
茨城県、栃木県、群馬県、埼玉県、千葉県、東京都、神奈川県は配送料無料でお届け。その他の地域は全国一律3万5千円で配送いたします。(沖縄・一部離島は配送相談になります。)
人間工学を応用し「気持ちいい」を科学した『ゆるリラ浴槽』で快適バスタイムを。
人間工学を応用したゆるリラ浴槽で身も心もリラックス
「気持ちいい」をとことん科学して生まれた、入る人をやさしく包み込む浴槽。頭と首をしっかり支え、背中を包み込み身体にかかる圧力が分散されるので、自然とリラックスする姿勢になれます。


人間工学の研究をもとに身体を支える面を増やし、安定できる形を追求しました。従来の浴槽より関節にかかる力を分散し、入る人をやさしく包み込み支えるため、身体を安心して預けられます。


<魔法びん浴槽> 浴槽断熱材+高断熱のふろふたのすぐれた断熱構造

浴槽を断熱材で包み込んだ魔法びんのような構造で、お湯の温かさを保ちます。お湯はり後4時間たっても温度低下はわずか2.5℃以内であたたかい!
※図はイメージです。実際の仕様とは異なります。
また、取り付ける器具によって断熱材の形状は異なります。
<お掃除ラクラクほっカラリ床> やわらかな床で足元に、いつもやさしさを
ひざをついても痛くないやわらかさ

お掃除ラクラクほっカラリ床は床の内側にクッション層を持っています。そのクッション層が畳のようなやわらかさを実現。同時に断熱材の役割も果たすので冬場の一歩目もヒヤっとしません。
床表面に特殊処理を施した親水層の効果で、皮脂汚れと床の間に水が入り込み、汚れ落ちがスムーズに。お掃除がラクラクです。
親水パワーで軽くこすれば汚れスッキリ。乾きやすいからカビにくい。

コンフォートシャワー
コンフォートシャワーバー
高さも、角度も、自由自在。バーのカタチをアーチ形にしたら浴び方の幅が広がりました

コンフォートウェーブシャワー
ウエーブ&スプレー2つの水流で節水しながら軽快な刺激のある浴び心地

汚れをはじく ささっとキレイ排水口

洗いやすいカタチと抗菌・防カビ仕様でお手入れが簡単!髪の毛が絡みにくいらくポイヘアキャッチャーなど細部までこだわった排水口です。
お掃除ラクラクカウンター

カウンターは壁や浴槽と離してデザイン。表から裏面、側面までお手入れがしやすくなりました。
スッキリ棚水栓

シーリング照明 1灯(LED)

ポップアップ排水栓

選べる豊富なカラーバリエーション
床、壁、アクセントパネルなど、お好きな組み合わせで自分好みのバスルームを創れます。

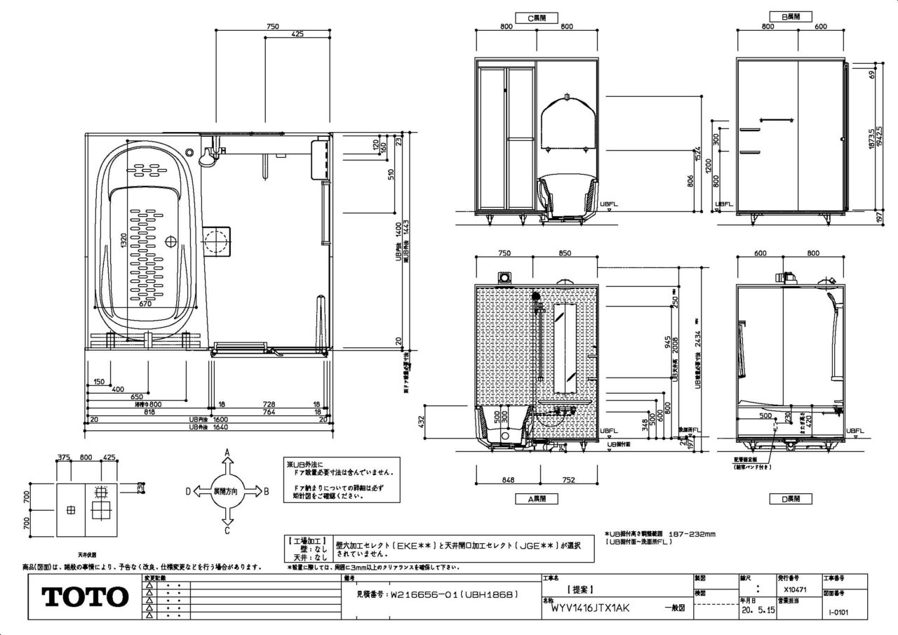
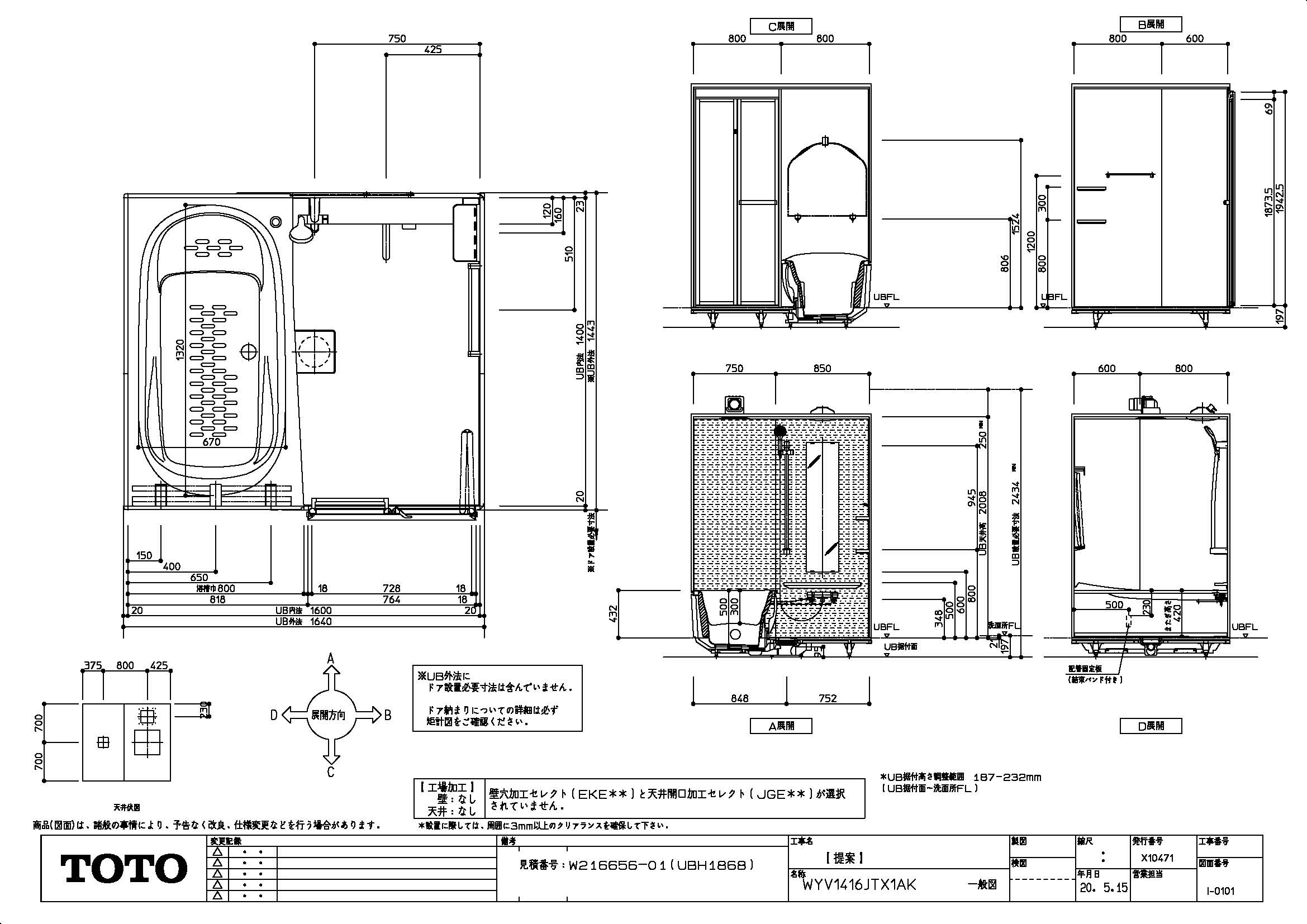
図面・寸法
※上記価格は当社の対応エリアでの参考価格です。地域、建物の形状等の諸条件により、対応できない場合や金額が異なる場合があります。
※価格には標準工事費が含まれておりますが、建物等の状況により別途工事が必要となる場合がありますので、事前に必ず現地調査させていただいております。
※掲載内容・金額は2020年4月現在のものであり、予告なく変更となる場合があります。
※掲載写真は一部イメージ、オプションを含みます。詳しくはお問い合わせください。


