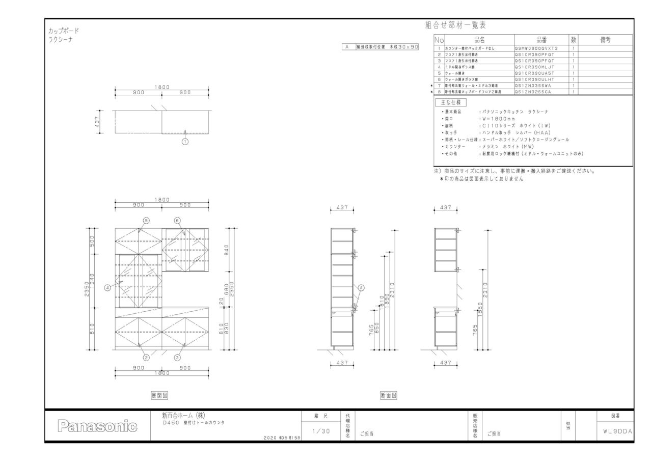
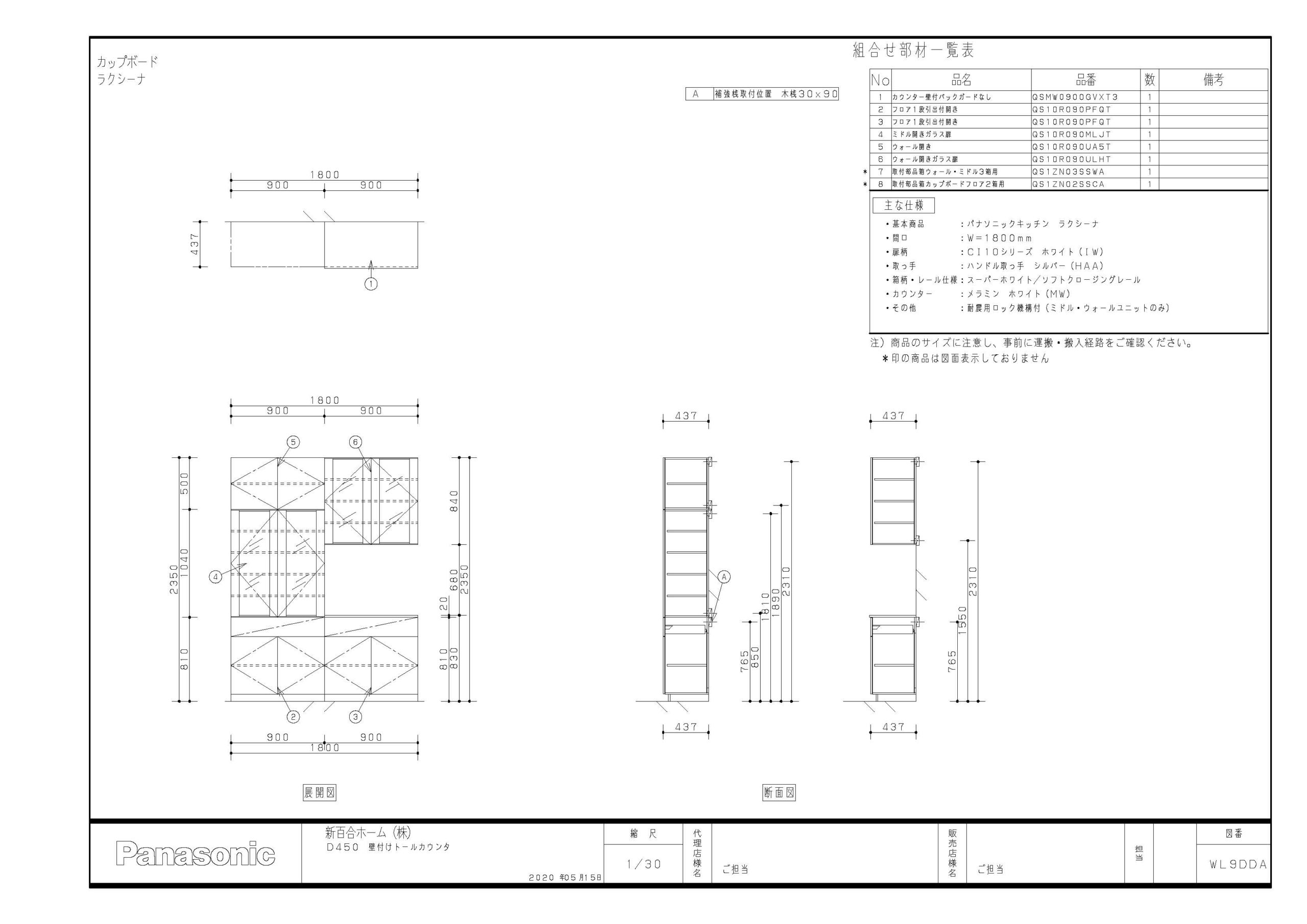
パナソニック カップボード W1800 ハーフカウンターガラス扉付き収納重視タイプ設置工事

W1800幅の半分を全面収納にした機能的なカップボード。通常の開き扉を3カ所、大きな引き出しを2カ所配した上に、よく使う食器や什器の収納に最適な中の見える両開きのガラス扉を2カ所配した収納力と機能性が魅力のプランです。
工事目安価格

商品のみの購入も可能です。
茨城県、栃木県、群馬県、埼玉県、千葉県、東京都、神奈川県は配送料無料でお届け。その他の地域は全国一律3万5千円で配送いたします。(沖縄・一部離島は配送相談になります。)
商品説明
パナソニックならではの、豊富なカラーバリエーション カップボード扉柄は45種類

その他

開き戸ウォールユニットには耐震ロックを装備。
安心感を高めます。

低ホルムアルデヒド対策
使用面積制限を受けない、
最高等級F☆☆☆☆の商品です。
図面・寸法
※上記価格は当社の対応エリアでの参考価格です。地域、建物の形状等の諸条件により、対応できない場合や金額が異なる場合があります。
※価格には標準工事費が含まれておりますが、建物等の状況により別途工事が必要となる場合がありますので、事前に必ず現地調査させていただいております。
※掲載内容・金額は2020年4月現在のものであり、予告なく変更となる場合があります。
※掲載写真は一部イメージ、オプションを含みます。詳しくはお問い合わせください。
お気軽にお問い合わせください。042-860-5195 受付時間 8:00-18:00 [ 日祝定休 ]
お問い合わせ


