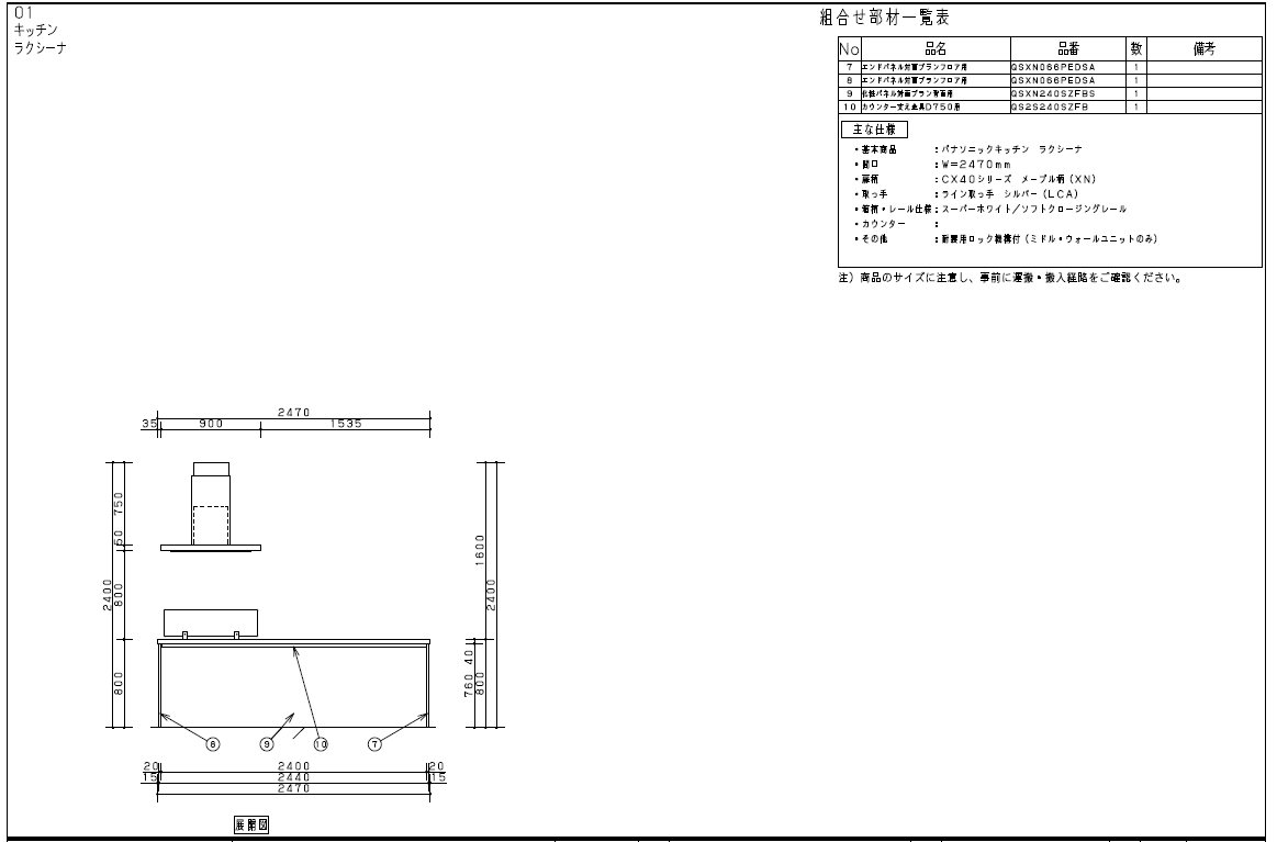
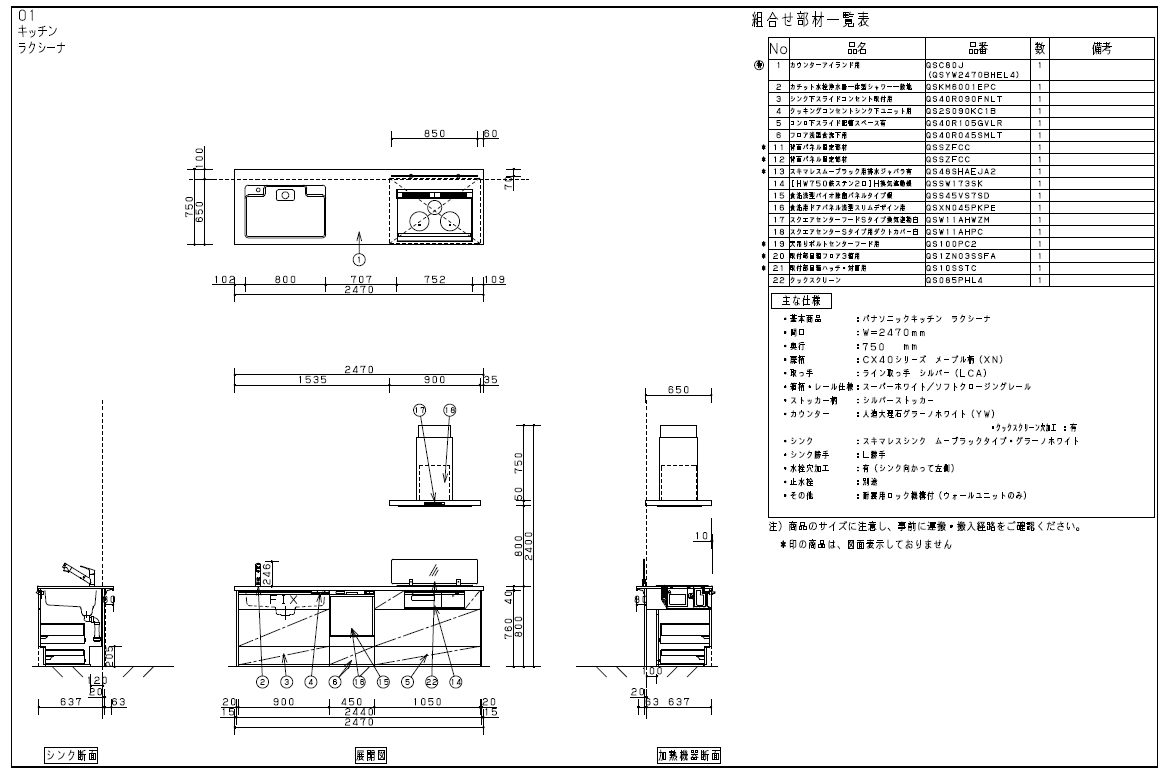
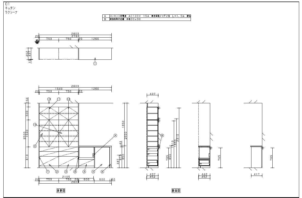
2021年3月13日 / 最終更新日時 : 2021年3月16日 藤田 雅之 現場日記 内装改修工事 今日は内装改修工事の打合せに行ってきました。 現場は町田市内です。 まだ写真は載せられないので、提案するキッチンとカップボードのプランを紹介します。 Panasonic ラクシーナ 扉柄はCX40 メープル柄(XN) キッチンは配置を変えて、アイランドタイプへ カップボードは壁面をフルに利用したプランです。 FacebooktwitterHatenaPocket