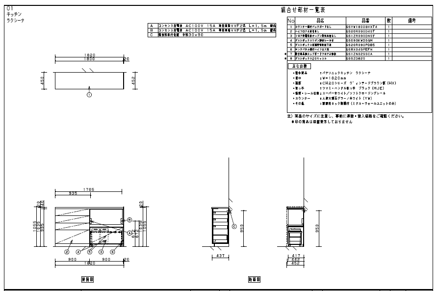
2021年6月17日 / 最終更新日時 : 2021年6月18日 藤田 雅之 現場日記 カップボード 先週に引き続き、カップボードのお問い合わせが増えています。 今回は、お客様と何度かやり取りさせていただき、 弊社で作成したプランです。 HPに記載してあります、電話・メールどちらでも大丈夫ですので、 お気軽にご相談ください。 FacebooktwitterHatenaPocket